NEWS
“道生一,一生二,二生三,三生万物”
材料科学之道,衍生于万物,合成于天地,创见于未来……


设计师方磊确立以“道生万物”为设计链路,是在充分解读项目背景、企业文化和精神后,并挖掘建筑特征与空间层高优势,从而适宜地嵌套展陈之义。整体强调场地、氛围、情感、材质及寓意等,通过艺术化建构、设计逻辑统筹,讲述人与产品、场域及自然环境的趣味关系。


概念草图

空间分析图

轴测图
作为一家集系统性新材料的研发、生产、销售与服务为一体的国家级高新技术企业,道生天合的核心产业可为新能源领域提供综合解决方案。操刀其展厅,壹舍团队从品牌体验、产品陈列、美学享受等维度出发,将空间以“盒子”结构划分与串联,通过灵动的展陈动线以及深入的交互形式,探索材料科技的无限可能。
01 挖掘建筑廓形



探访起点,简练中尽显建筑美学与磅礴气势。超大尺度悬挑造型,结合几何形式、阵列感,令每一道分割与排列都错落有致。镂空开口在光影、色彩与构图的碰撞下,赋予轻盈质感和细腻有序的变化。


大片红色铺陈,在充满温度感的浸润中,强化了不同物体与构件的相互映衬。设计师也注重在原有体量内做功能复合,展台格架既是展陈的主要载体,又是装饰的组成部分。从墙面延伸,且从结构上附着,在立体的交织中注入丰沛想象与蓬勃活力。


“可持续性”也是道生天合在研发、生产、使用及回收过程中高度重视并遵循的守则。落笔在设计中也有响应,建筑内部围合出的碳中和景观庭院,增添虚实的构成关系,在相互借景中进一步加深了空间与自然的融合。


回归到每一个展示单元,皆与建筑、庭院有所延续与交互,简约的几何形态以有机的交错和叠加,释放着立体结构的无限张力,而探索的趣味也潜藏于琐细点滴之中。
02 探索交互延展

剖面图


于自由开放的廓形下,品牌文化也在潜移默化的输出呈现,即便身处二楼也能一览全貌。通过动态与静态的结合,借由影像的妙笔,企业的研发过程及未来发展方向,以一种更加鲜明有力的形式展示,引领人们思考科技的更多可能,传达出更广阔的世界。



因地制宜设置廊桥,将各个“盒子”连接起来,既形成不同空间的贯通,又起到缓冲与过渡之效,在物理性乃至体验性层面都有其典型意义。扶手采用玻璃与金属格栅两种材质,在虚实交融中,弱化着存在感,气势上也强调了一体交流。


二楼中心展区提取“万花筒”概念,试图包容万物。顶部以镜面铺展,在相互映射与拉伸中,打破压抑之感,同时又和谐的将灯槽嵌入其中。值得一提的是,立面上的金属条从上向下一体贯穿,作为悬吊支撑,亦是元素延续,令功能、细节、视觉浑然相融。



二楼也因势打造内挑阳台,实现楼上楼下、室内户外的互动对话,可在此小憩闲思,背后所承载的涵义也于不经意间涤荡内心。
03 赋能循环之道


一连串不规则大小的开口,充当动线与视线的引导,同时也是空间造型与结构的一部分,颇有曲径通幽而后豁然开朗之势。


以雕塑装置手法介入楼梯盒子以及踏步叠级,是另一个交通枢纽的设计载体,以此塑造着洄游动线,这也是对企业所秉持绿色循环足迹的影射。在规整的块面与不规则的造型融合中,明暗交错、色泽对比、起伏有度,诠释着力与美,空间情绪也随之自由转换。


这一参观路线虽被围合包裹,同样也注重呼吸感与透气性,踏步、扶手、以及顶部皆能捕捉其踪迹。利落线条、内嵌灯带与自然光影的介入增添韵律之美,也化身行径导向,自有一番随性意味。

“天地并生,万物为一”,上海道生天合展厅循着场域的逻辑脉络,在动态中抒写建筑与展陈美学,并将生态环保主张贯彻其中,一切既呼应企业文化及品牌理念,又立足空间表达与展示陈列的平衡之妙,在自然、艺术的场景中,以设计赋能,让穿梭之旅既轻盈又踏实!

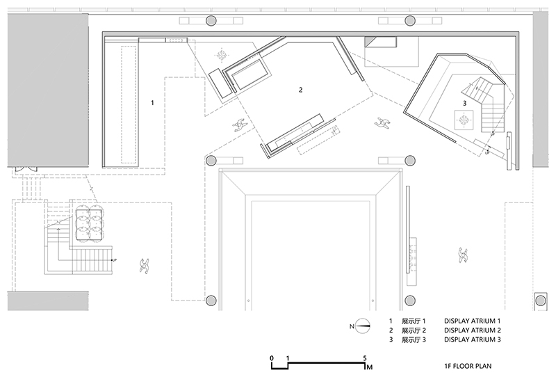
1F平面图

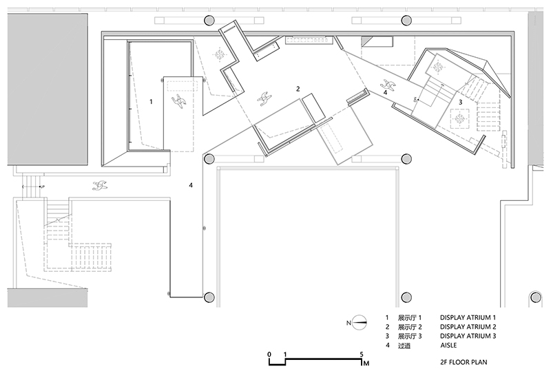
2F平面图
项目名称| 上海道生天合展厅
项目面积| 400m²
完工时间| 2024年8月
设计公司| ONE HOUSE DESIGN 壹舍设计
设计主创| 方磊
参与设计| 蒙程鹏、胥磊
项目摄影| 张静