NEWS

2023年春天,曼哈顿一个深夜,设计师方磊接到L先生的电话,邀请他规划上海外滩壹号院的新居。时隔一月,方磊归国,双方随即展开了细致交流。考虑到业主的职业习性、家庭结构的变动可能,以及新房现状——入手精装从硬件、风格、色彩、功能、细节等方面匹配度都不高,L先生毅然决然选择个性化定制,只为拥有更适合自己的家。

01推导改造重构


L先生是一位知名导演,这不是方磊和他的第一次合作,再度携手更显默契。对新家的期望仍延续了首次合作时的基础诉求,但也有不少新鲜点子与想法融入其中。“和业主的沟通非常顺畅,我们其实可以参照上一套住宅的经验快速提供设计方案,但很快就自我推翻了。时隔六年,我还是希望能赋予他们更契合当下生活方式的体验。”L先生也表示,入住其中确实有不少意外之喜。

空间分为上下两层,设计师方磊对建筑架构、长向布局、动线关系、楼层关联等方面进行了细致梳理与分析。本次改造亟需解决一楼的采光问题,基于原始建筑特征与户型情况,一改原始布局的封闭状态,将各空间打开,强调互通共融。


玄关原本窄小紧凑,由于左侧墙体结构限制不可变动,方磊于是从立面视觉来缓解,将入户主背景进行凹凸层次处理,主卧室的门也做了内退调动,让其在物理和感官上更显松弛与宽余。

落地门窗的引入,有效实现南向朝阳面的采光最大化,也让室内与庭院无缝衔接。此外顶部灯膜营造的人造光源,进一步提升了光照效果。动线的流畅规划与精妙串联,让厨房和餐厅区域同样可以透过门洞来欣赏庭院风景。
02探索契合表达


家是业主自我表达的画布,基于L先生的职业属性,设计师展开了一系列的衍生。这个家中兼容静奢、赛博、未来……但一切的本质又不脱离舒适与情调。电视背景墙以洞石打造灵活柜体,随着艺术画作的因需移动,电视随即映入眼帘,巧妙实现电视和物品的秀与藏。在这“开电视”的背后,方磊精准统筹多者的细微尺度,让功能和形式在互动中各显其美,这既是一种随性设置,更是L先生独特生活方式的一部分。


光线随时间流转明暗交替,色彩也以不同方式细微调整。立面上金属波纹板、肌理漆,以及局部跳色点缀,打破了呆板,彰显特色。此外,艺术藏品与家居、设计选材无一不是惊喜搭配,内在的点滴与设计妙用皆有所呼应。





阳台的原始立柱也是客厅设计障碍点之一,设计师既要让功能区一体顺延,又不能影响视觉上的流畅开阔。最终对其加以利用,构筑起吧台场域,兼具过渡属性,既可面向客厅使用,又能随玻璃移门的变动与庭院联为一体,多元转换、自如应对。





设计师方磊对餐厅与厨房的面积配比也进行了因地制宜的调整,从实用、好用主义出发,优化了餐厅的动线便于多向穿梭,又加大厨房进深,提供充足的存储和操作空间。此外,还通过对材料的整合处理,在利落干练的风貌下,释放卓越美学品质。
03构筑静谧栖居





每次改造,L先生都有一个不变的需求——卧室和浴室足够宽敞。主卧套间以开放式设计兼顾风格与舒适度,柔和的中性色调营造出质朴宁静的氛围。透过落地门窗,将户外庭院拥景入室,以真实的自然之感让人身心放松。




在难得的闲暇时光里,业主会泡在浴缸里休憩、看书。主卫配备了多个镜面,交叠映射,造就空间的无限延伸,现代性和未来感都得以强化。一个可旋转的美妆柜,为女主人日常生活提供便捷。


次卧同样有着简洁的色调、温润的基底,舒适随性是其最优注解。房门以及内部移门的相互配合,让次卫灵活转换,也可充当公卫之用。
04邂逅艺术瞬间



楼梯贯穿上下两层,设计师以造型、材质、灯光来凸显其穿透性与轻盈度,在光线和视觉上建构起有趣的关系和耐人寻味的细节。





地下一层也可入户,归家动线及仪式感同样必不可少。以一条廊道来铺展更多的功能分区,设计师方磊在不同的角落,精选人体器官雕塑、个性摆件与艺术画作,进行组合创作与致敬表达。随着步移景异,仿若展馆闲行,于不经意间邂逅更多趣味瞬间。
05安放情感一隅



L先生家中收藏了众多潮鞋以及限量款球鞋,设计师方磊在定制柜体与灯光组合下,打造了满墙的陈列区域,极具格调。这里还可兼顾客房使用,温和的色泽将细腻柔情娓娓道来。


楼下的影音室则是L先生职业习性的外在表现。考虑到工作和娱乐需求,空间远离楼梯通道,尽量减少对生活区的干扰。遵循整体设计基调的前提,音响的布局与声学设计、视听表现也都有着专业级的思考与处理。


L先生还酷爱阅读,博览群书,书房内摆满了各类书籍典藏,并为他阅读或创作提供了安静的场所。借助天井采光,将跑步机安放其下,酣畅运动之际,与自然也近在咫尺。此外,末端的一扇门同样具备机动可变性,能因需实现影音室与书房的联通或独立。

拍摄当天,正值女主人在家,她不由得感叹道:“回想起我们决定重塑这个家的那刻,眼前的一切都证明了我们的选择多么正确和值得!”这一瞬,家的情感与幸福仿佛被赋予了实体形态。诚然,家就是为家人带来美好生活体验,而这也正是我们对每一座私宅的设计愿景与价值导向!

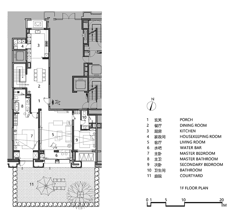
△ 1F平面图

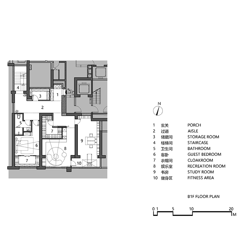
△ B1F平面图
项目名称 | 上海外滩壹号院 知名导演之家
项目面积 | 300m²
完工时间 | 2024年6月
设计公司 | ONE HOUSE DESIGN 壹舍设计
设计主创 | 方磊
参与设计 | 樊钱中、赵冰洁、蒙程鹏、胥磊、方紫诺、程通、李斌、陈汶霄、巩绪成
视觉陈列 | 李文婷、李美萱、谭芳芳
项目摄影 | 朱海