NEWS

历史底蕴与现代活力融为一体,经济发展与科技创新交相辉映,上海徐汇华泾紧跟时代潮向,正不断崛起与澎湃发展。嘉华国际以智慧和远见择址于此,与龙华房产、徐汇城投共同打造——嘉俊庭,并力邀方磊及其领衔的壹舍团队操刀展示中心、样板间的室内设计,通过立足前瞻进阶人居理念,以品质细节为根基、国际风范为底色,描绘出理想栖居新境地。
01
展示中心:生态自然境

上海嘉俊庭展示中心以线性的访客参观流线为出发点,趣味性的连接处理令一切分中有合、合中显分,既打破了空间固有的边界感,又创造出与建筑形态相互统一的“环”,形神各具其美。

接待区以利落与礼序相迎,遵循建筑弧形之态并延用于室内,配合显著的线条与细节处理,于大气的块面关系中流溢出动态活力与能量。精心选取的吊灯,无论是外形还是内核,都与空间紧密呼应,铺垫着和谐的感知度。

在顶部镜面不锈钢与墙面竹木纤维镜面板的作用下,影音区被立体全方位的深邃暗黑基调所包裹,视觉与听觉双重感官浸染,无形中完成功能以及情感上的正向引导。


随着电动旋转门的开启,一个偌大的中庭花园映入眼帘,让生态自然近在咫尺。这种豁然开朗的反差体验,也正是设计师对动线的精心规划与安排。


7.5米高挑空赋予沙盘区卓越的气度,光影倾洒而下,纹路、肌理与色彩碰撞共舞,丰满与平衡相得益彰。窗旁不锈钢艺术长凳,仿佛雕刻的巨石一般,凹凸不平,又释放出柔软情意,与沙盘形成饶有趣味的对望。



遵循建筑由高到低的轮廓转变,顺畅实现沙盘区、洽谈区和水吧区的有序划分。原始建筑的8根立柱被不锈钢包裹,一体向上彰显阵列气势,且以细微的色泽差异与灯带点缀,续写精致细部特征。



建筑实墙与整片落地门窗的衔接与整合也是设计师的思考要点。3款木纹铝板铺设于立面及顶面,精细设置其尺度与拼接方式,在规整排列中塑造出些许渐变与跳脱形态。通透生态的样貌同样延续至洽谈区,让交流更显惬意与随性。



内外共生,无界交融。玻璃幕墙将光与景观引入室内,面向中庭的半圆弧卡座也仿佛置身自然之中,建筑、景观与室内浑然相融,包裹感和私密性也被有效呵护与满足。光影婆娑间,捕捉生活的点滴诗意。


屏风化身背景墙,撷取其波浪状语汇,让水吧区浸润在一片流动之中。漂浮的廓形、开放的格架、精选的器皿摆件,在灯光的映衬下,实用功能与优雅审美相互成就。


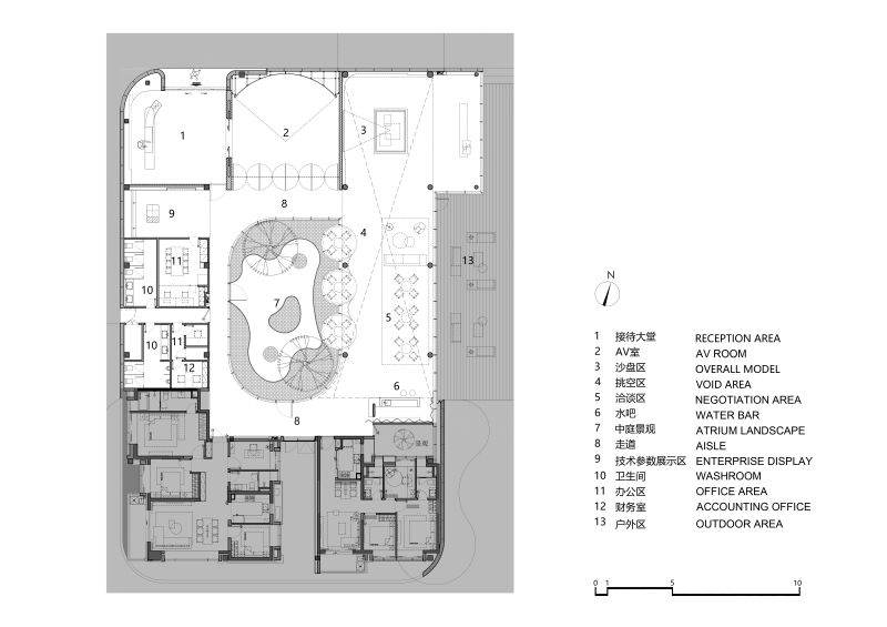
△展示中心平面图
02
146样板间:都市理想家

上海嘉俊庭146样板间以俊杰人居作为思考点,充分考量不同家庭结构的变化及相应的功能需求,通过精细推敲与不断打磨,创造出多样化、高灵活度的都市宜居空间。


偌大的飘窗以及阳台玻璃移门,为开放式客餐厅带来卓越的采光面。客厅践行着“去电视背景化”的设计理念,让窗外的美好景致悄然滋养着日常。多款家具选型上,体量感与框架感相得益彰。并因地制宜巧借飘窗角落,精心构筑休闲一隅。


餐厅,荟萃着家的爱意与温暖。作为入户后显著一景,其靓丽的色彩、舒畅的氛围、错落的构造,多元层次呼之欲出。在材质选取、元素运用与造型语汇上,亦注重一脉相承,强化整体概念。


书房内不拘一格的陈设,多样的落座形式,缤纷的场景状态,映射出思绪的自由无疆。壁挂式书桌、柜体与层板,直观勾勒通透轻盈之气。整面木饰格栅打底,规整干练,又不乏细节点缀。



在低调中流露沉稳,于简约中铸就细节,主卧套间借助轻盈的线条、娴熟的构成手法、以及块面与圆弧的顺畅交融,氤氲着深层的内涵与意味。梳妆桌与床头柜一体成型,在起伏中极具互动性与关联感。


设计师以宁静与平衡的内核将次卧风情娓娓道来,尽显深浅对比、纵横交错、前后穿插、虚实相生。既把控了视觉上的韵律与比例关系,又串联起使用中的动作与心理,耐人寻味。

儿童活动室力求实现尺寸的最优化利用,集亲子、玩乐、学习等多场域于此,并因势结合飘窗,以蔓延相连的软包垫,铺展整体利落之貌。汽车主题的陈设充盈室内,让热血少年的梦想随风驰骋。

上海嘉俊庭展示中心、样板间,基于对都会人居与舒适美学的深刻理解,并以此切入实践,采撷自然盛境与恰到好处的细节,勾勒精奢共鸣的生活场景,构建多维饱满的感官体验,用细腻的笔触、丰盈的想象,令美好无限蔓延。
项目名称 | 嘉华嘉俊庭展示中心&样板间
项目地址 | 上海 徐汇
项目面积 | 展示中心705m² 样板间146m²
完工时间 | 2024年1月
设计公司 | ONE HOUSE DESIGN 壹舍设计
设计主创 | 方磊
参与设计 | 李煌、王大俊、樊钱中、黄翠勤、赵冰洁
视觉陈列 | 李文婷、张雅然、丁聪
项目摄影 | 张静