壹舍方磊新作 | 静谧山居 自有诗与远方——郑州永威•山悦合院与中叠样板间2020-07-02

久居繁华闹市,更加向往山林的淳朴本真,为浮躁的心灵寻一处宁静悠然之所。位于中原大地,郑州向西的浅山,依托原始丰富的台地、坡地特征,一片约8000亩的生态山居栖息地——永威·山悦正破土而生,由壹舍设计操刀的合院、中叠样板间即坐落于此。

设计团队遵循其整体环境风貌并挖掘建筑内在之美,以体块穿插的设计手法,纯粹的材质细节和虚实错落的表现形式,勾勒一步一景的体验感受,打造山居度假般的闲适生活,让诗和远方近在咫尺。


合院:温润雅致

踏入一层即可见阔绰的布局,6.2米的挑高设置,搭配大面落地景观窗,尊贵尺度以及舒适格调不彰自显。延伸感、灯光、材质、形态过渡层面都经过精心拿捏,增添其细节之处的魅力。

“考虑到室内的呼吸感与互动性,我们决定在二楼立面上设置外凸的BOX,正如‘看风景的人在楼上看你’,加强上下间的对话与联系,也显著提升了空间层次。”设计师方磊如是介绍。

秉承了壹舍一贯的克制平衡之道,客餐厅避免过多元素堆积,在满足需求之外,又透露出分区美学。挑高的一侧立面如同阶梯状渐次内退,餐厅因势而生,这是尺度上的自然而然,也是对块面关系的灵活统筹。

在半包裹的围合中,借由夹丝玻璃让餐厅和厨房和谐衔接。极富韵律的木格栅与灯带,恰似山林间闪烁的点滴星光,承载着用餐的愉悦与浪漫。

楼梯间一缕缕线条演绎着场域的关联与独立,巧妙的悬浮状扶手,彰显功能、美感与工艺的有效结合。拾阶而上的每一步,都能感受到流泻的光影之美,便捷的电梯与之相望而设。

二楼的主卧套间进一步精研空间的穿透与情趣。设计师从山峦的层叠中捕获灵感,在大块面的延伸、穿插与碰撞之间,构成错落的关系。左右滑动式的木格栅柜门设置,渗透出别样的自在与柔和。

大范围的木质包裹,凝练出简朴温润的气息。设计师借由露台打造卧室之外的惬意之隅,进一步为其配置更高居住品质,体现卧室设计的周到考量。

开放式衣帽间通透、轻盈,既有力贴合需求,又让不俗品味在细致的划分中悄然流露。

主卫墙面、地面由同款石材一体而成,置入圆润的镜面,可谓干练之中恰到好处的融合与均衡。

梳妆台以浓郁的联动性交融各区域的纵横关系,端坐台前向客厅眺望,宛如置身山林间登高处,可一览四周风光。

次卧套间内不同色调的灰铺就优雅内敛的质感,人居美学的率真平和便是如此。拉丝不锈钢镀黑钛的上下咬合点缀,打破纯色床背景的单调,活化空间表情。

“地下层的架构与一层颇为相似,同样采取了半挑空设计,温润的基调、肌理表现都得以沿用。采光井将光线引入,开放式布局确保了使用的包容性与灵活度,这里可满足品茶、聚会、观影等不同功用。”设计师方磊介绍道。

值得一提的是,地下室保留了两个独立的露台,让居者身处地下层,也能找到与自然的依偎。

效果图

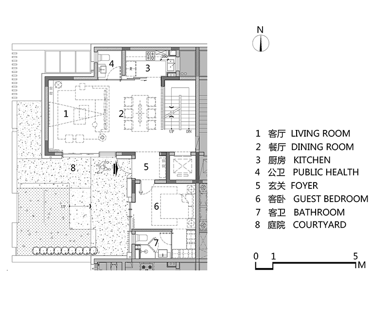
1F平面图

2F平面图

3F平面图

4F平面图

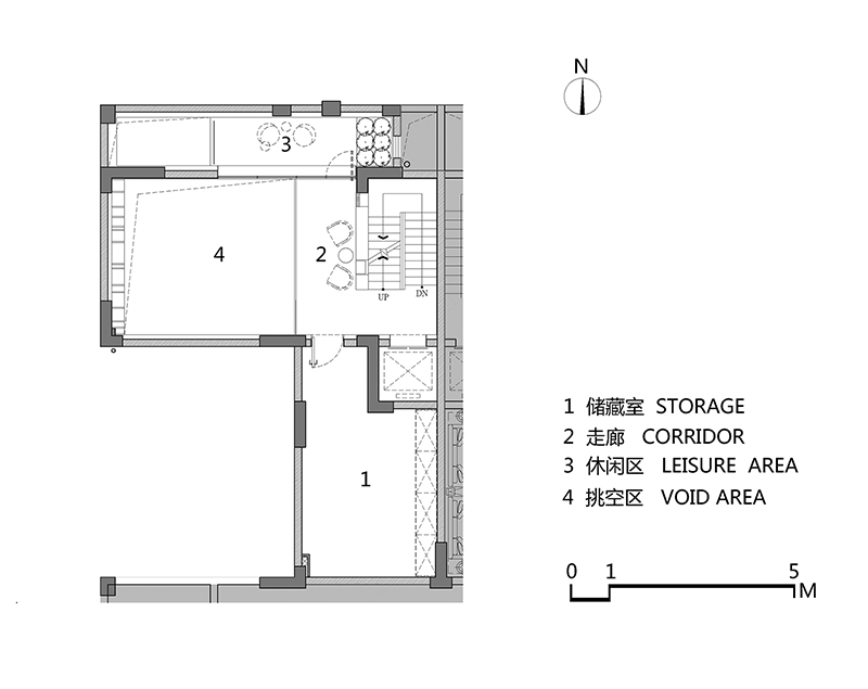
B1F平面图

B1F夹层平面图


中叠:静谧轻奢

玄关是空间的起始笔触,设计师以大片木饰面铺就,平和轻松之感顿显,在闲适的穿梭中便可邂逅转角的温情,仿若薄雾笼罩下不经意透露的那点山间韵味。


阳光透过窗纱,光线点点落于柔软布料,这一瞬的客厅仿佛成了永恒。设计师摒弃虚张声势,舍了繁华堆砌,去除多余的墙体,借由金属格栅的虚实效果,连接多个区域互通对话,简洁的线条,温和的色调,安宁地诠释出静谧轻奢的格调。

厨房、吧台、餐厅自由的形式,让尺寸感、舒适度以及便利性进一步提升,烤漆板与金属贯穿始终,加由视觉和触觉上的多元碰撞、对比,映衬一种微妙的开放与互动。


客卧作为私密区域,置于入户玄关另一侧,以素雅与舒适妆点,自成一景。

金属格栅将楼梯与客厅联动起来,既有一定的韵律节奏,又并非完全规整的形式,在灵动与透气的布局中,凸显了楼梯主体的雕塑美感。又因材质的延续、叠加使用,释放出精简纯粹的张力。

主卧套间以递进式的布局、丰富的质感打造出层层叠叠的精致韵味,夹丝玻璃与木饰面、金属格栅的多重组合,既有上下一体的延续性,又赋予其满满的设计感与温馨感。格栅的纹理布局极具考究,可谓窗棂元素的活化运用与园林艺术的当代表达。

书房、卧室两相对望,延续了克制的设计手法,按照生活场景与动线逻辑进行重塑,兼容并蓄,让居者在平静与自由的氛围得以休憩,同时又不失简练与温度。L型的落地窗又极具趣味,连通户外阳台,成为室内向户外延伸的媒介。

低饱和度的色彩,奠定了次卧细腻舒缓的基调,透亮、洁净又不乏活力流转。

效果图

3F平面图

4F平面图


“设计承载着生活的期望,蕴藏其中的山居隐事亦从中沁出,节制内敛,却又能打动人心。”诚如设计师方磊所期许的那般:在山影林海间,郑州永威·山悦合院、中叠样板间,没有过多的堆砌,以放松的姿态蔓延出低调细腻、安静恬淡之美,让居者在城市的洪流中寻回精神归属,让诗意充盈其间,意蕴悠长。

 

项目名称 | 永威·山悦合院、中叠样板间

项目地点 | 河南省 郑州市

项目面积 | 合院333 m2、中叠143 m2

完工时间 | 20205

室内硬装 | ONE HOUSE DESIGN 壹舍设计

设计主创 | 方磊

参与设计 | 蒙程鹏、胥磊

项目摄影 | 三像摄 陆彬