NEWS

居所如同一个圆心与触点,居者的轨迹、态度与之交绕关联,影响深远。居所的变迁也意味着新的启幕,对家居生活寄予了更高的诉求。当寻求改变的老同学徐先生遇见极简风设计师方磊,一个关于双向默契与成全的“家”将在此开篇……

为了给孩子更好的学习环境,业主徐先生夫妇从一座北方城市而来安家上海。老同学方磊无疑是操刀新家的最佳人选,并且其和方磊自住宅F House也相距不远。热衷于古典风格、爱好泡茶与传统文化的老同学徐先生,居然会选择擅长“极简风”的自己来设计,初闻此言方磊无比惊讶,心中也有着顾虑。然而,徐先生的一句话给了方磊大刀阔斧的动力,也为上海徐公馆打开家的另一种方式——“决定来上海的那一刻,我就希望突破与改变,在思想认知、生活方式乃至行动上都有所改变!”
01
自由交互 落笔简练风貌

观其状,描其境,透过近景玄关、中景过渡、远景客厅的套景手法,由收到放、逐步推引。注入变幻的光影,相应的抽象情绪也随着视觉落点而转换,在感性与理性的交融之中丰盈家的内核。


起笔于全方位的开放互联,自由温暖的主张贯穿全局。厘清空间逻辑及多重关系,探寻各分区的自在渗透,以灵活的洄游动线、“空”与“简”的面貌将多个生活场景串联起来。垂帘摇曳,柔和的日光洒入,将整体氛围烘托的愈发迷人。


温煦底色讲述着安静的力量,也诠释出家的舒适与归属感。墙体本身、木饰面与烤漆柜亲密叠加、有序配合,简洁色调、干练块面、饱满层次融合为一。顺势延展之际,也均暗藏充沛的收纳,表象所见之外更具功用本质。

晨昏朝暮,一日三餐,温情相伴。用餐区笔触利落清朗,高低连贯起伏,恰到好处的比例拿捏框定秩序,哑光与亮面、粗粝与光滑相映生辉,于率性中也勾勒着仪式感。



体贴周全的设计也离不开对厨房内外部的关系梳理。有效扩大原始厨房尺度,并增设双通道步入模式,打开与公共区域的联动。于内合理排布,提升实用效率,在暗黑静谧的调性里,无声流淌卓越质感。
02
细节刻画 深挖建筑美学

整合原有建筑柱体并加以利用,衔以踏步平台建构起书吧与楼梯,从而塑造相应布局。可提供不同方向的穿梭选择,又以完整的体量感自成一景。不断的层叠与解构,既呈悬浮之意,又精进细部,耐人寻味。


透明廊桥横贯其中,承上启下,衔接两侧,鲜明的造型发挥多维功效。“依托建筑结构,以轻盈的视觉形态,打开立体全方位的交互,实现借光、借景、借空间。这也是提升呼吸感与通透性的一种巧妙解决之道。漫步于此,能衍生出曼妙的体验。”方磊补充说。

楼梯间从一层到三层纵向打通,套景手法也同步贯彻。两个独立的空间彼此延伸,规整和谐。三层则略显外凸,交错的体块与严谨的配比,进一步彰显着细腻的处理。

方案推敲过程图▲
于大处着笔,也不忘细微处发力。由内到外捕捉建筑美感,细枝末节中亦潜藏着思考,精准推敲,续写感受并令其升华。
03
静谧栖居 关照灵魂深处


一条主轴线顺畅关联起主卧套间的各功能分区。主卧与一楼在选材运用、设计语汇上一脉相承,从容的基底中透露着克制性与真实感。融入随性气息,让材质与肌理碰撞,在明与暗、圆与方、刚与柔间,诠释不拘的奥义。

步入式衣帽间开放的格局、完善的分区、利落的构造一目了然。引入镜象手法,令这一场域扩容,一镜之隔使其相映成趣,也折射出无限遐想。

卫浴空间以台盆镜柜充当枢纽向外围发散,调动多维感观,给予便捷呵护。在光线引入和氛围营造上也细致规划,浴缸临窗而设,内外交融对话,让沐浴变得更加惬意与趣味。



方案推敲过程图▲
理性的周密考量与感性的人文关怀,共同交织出家的温度。长辈房、儿童房根据不同居者的特性而适配设定,以实际使用舒适度切入,对每位家庭成员的差异需求进行平衡与满足。

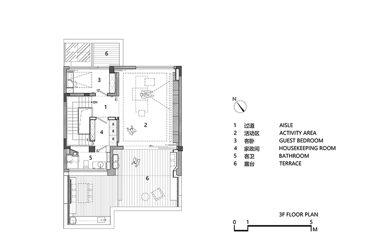
家庭全员的情感凝聚也需精心安放,三楼活动区以大道至简的廓形,悦纳多元之需,强调其变化与成长性,也为未来预留更多可能。一进到底的格栅节奏井然,延伸引导视角并兼具储物功能,与室外露台联动,模糊界限,将生活的界面扩充得广袤无垠。
上海徐公馆,不追逐时髦,不囿于时代,不惧潮流更迭,以自身凝练的恒久特质,熠熠生辉。设计师方磊表示:“希望在这个新家,借由不同情境链接起一家人的惬意相伴,让隽永且松弛的状态潜移默化间滋养着他们的日常起居,满怀热情与信心的开启这一段全新的生活旅程!”家庭全员的情感凝聚也需精心安放,三楼活动区以大道至简的廓形,悦纳多元之需,强调其变化与成长性,也为未来预留更多可能。一进到底的格栅节奏井然,延伸引导视角并兼具储物功能,与室外露台联动,模糊界限,将生活的界面扩充得广袤无垠。





效果图▲

1F 平面图▲

2F 平面图▲

3F 平面图▲
项目名称 | 上海徐公馆
完工时间 | 2022年9月
设计公司 | ONE HOUSE DESIGN 壹舍设计
设计主创 | 方磊
参与设计 | 胥磊
视觉陈列 | 李文婷、潘妍思、陈盈
项目摄影 | 隋思聪