NEWS
2001年,意大利建筑大师Vittorio Gregotti受邀担纲上海新浦江城的整体风貌规划。20年后,壹舍设计新办公室乔迁揭幕,搬入由他亲自打造的华侨城中意国际标志性两层独栋,一场穿越时空的设计对话由此开启。作为企业联结员工的重要载体,新办公室既关乎物质体验,又寄托情感认知,还彰显企业形象与审美表达,这也为壹舍团队贯彻一直所秉承的设计理念提供了绝佳的实践机会。

“良好的办公氛围,对于工作效率以及员工情绪都有着积极影响。我们希望在场地规模、功能布局、使用体验、设计赋能等维度,创造出健康舒适、灵动便捷的工作环境,为团队的成长壮大提供足够的空间支持,并助力我们更好的应对行业发展所面临的全新挑战与快速变化。”设计师方磊坦言道。
01 建筑之基 设计对话


建筑本身呈L形状,由横纵两个体块交接围合而成。室内设计也基于场地、体块特征而展开。设计师打破原先的内部结构,厘清需求并回归本源,在复合布局中探寻自由的可能性。


主入口毗邻两翼交汇处,踏步长廊不断延伸引人深入,内外衔接共同构筑宽敞的前厅,仪式感与大气格调不彰自显。基于侧面窗口尺度与比例关系转折而出的金属板与壹舍LOGO,纯粹的用材与配色,在伊始就奠定干练简约的面貌。



接待前厅宛如枢纽一般,不同的功能分区围绕其向两边蔓延,追求开放性与流动性。基于原始建筑的大片窗体,塑造出重复式、阵列式的套口秩序。多处挑空让光线得以平稳保证,也为两层之间注入了互动,令交流渗透发生。




接待前厅上方覆以表皮形式,通过不同间隔的有序分割,既起到过滤作用,又不影响采光,还产生虚实结合与对比。这一元素以及处理手法同样贯彻于接待前厅的另一侧,透过借景方式,丰富这一隅的表达呈现。它是内敛含蓄的,也是通透开放的,张弛有度、随性自如。


考虑到原始结构的特殊性,圆弧楼梯得以保留。一跃而上的旋转姿态,增添了一抹优雅。硬朗光滑的表面与灵巧柔和的形态,彰显这一场域的理性与感性平衡。




在L形的两个末端位置,也均设有楼梯,进一步提供便捷的垂直动线。端景处安放两列条状镜面,既方便整理仪容,亦能在映射中带来趣味。线形护栏则以极佳的韵律,自成一道靓丽风景。
02 展厅赋能 新品亮相


ONE CODE(简称OC)是方磊带领年轻化团队推出的原创家居品牌,囊括餐桌、座椅、茶几、边几及灯具等等。作为ONE HOUSE壹舍设计的触角延伸,代表着一种对生活日常的编码与重新诠释。值此契机,希望其能展陈公示于新办公室之中,但又要避免生硬直白的堆砌,诚然这也有一定挑战。



设计师最终通过策展思维,让这里幻化成一座大舞台。展示区选用了颇为常用的工程材料——空心砖,并以此堆垒出微缩版的楼宇形态,错落林立,却又浑然一体。产品也立于各自契合的位置,演绎出“远近高低各不同”的风景,统一之中又蕴藏变化性。即便后期展览主题更新,也同样可以机动转化。



空心砖内壁涂以绿色装饰,蓬勃生机的植物同样散布于此,既不会过于跳脱,又有一定的互融性。展示区采用回型动线,每一个展示面都设有开口路径,可踏入内部。穿梭其间,借助动态的影像、静态的展陈、叙述的文字,进一步丰富人与场所、产品的关联,也传递情感与价值认知。
03 公共配套 人文关怀


L型另一侧以深色为基调,旨在将外部的自然风光更从容的引入进来。移门划分沙龙区与会议室,彼此既可相对独立,又能联合一体,其可变性也为满足后续不同规模的情景使用创造了条件。


沙龙区末端和两侧楼梯处如出一辙,设置两个条状镜面,形成映射作为空间的延展,充盈着场所的情绪与呼吸感。



挑空处通道,仿若悠长的小巷。循步深入,餐厅予以木质包裹出静谧之感,多元的落座形式,高低错落的关系勾勒轻松的气氛。



穿梭于此即可领略不同的视觉体验与心理感知,也流露出设计的周全思考和对员工的细致关怀。


适宜的尺度、考究的块面、精准的比例,实现吧台造型与功能的契合表达。咬合穿插凸显材质呼应之余,也强化了细节表现。

餐厅剖面图 - 大堂剖面图


走道挑空剖面图
04 轻松办公 自由氛围

一层涵盖接待、展示、会议、休闲属性,二层则为集中办公区。从日常的工作模式、行为习性出发,在开放的布局中注重社交与互动协作,同时也提供独立式空间,更加匹配员工的真正所需。

顺着圆弧楼梯抵达二层,两侧墙体以错位框景打破单调。连接两大开放办公区的通道随即映入眼帘,从实用性考虑,将原本的面宽适度缩减,并设置整面的暗藏柜体,删繁就简,旨在带来更优功用。

开放办公区避免了传统格子间的隔阂之感,又借助洞洞板建构起朦胧的趣味。工位的排布,并未完全工整对齐,而是采用长短穿插的韵律,透露出动态与活力。


凹凸不平的肌理、略显斑驳的立面烙下质朴的印记,再辅以洗墙灯,捕捉并发挥光影的别样魅力,更显虚实相生之美,于细节处也充盈着雅致的情调。

对原有立柱进行规整并合理增设表皮装饰,映衬出一丝丝的英伦工业风,饶有情趣。“我们想要营造一种微妙的反差感,移步换景之间,能感受到新旧融合、时光交叠的美学深度。”方磊补充道。

透过比例关系、细节肌理、工艺质感、色彩搭配、乃至灯光勾勒,无一不印证出壹舍团队对克制平衡之道的一贯秉承与统筹。不同结构与材质的巧妙融合,软硬交织、刚柔相济,生动诠释出兼容并蓄的风貌。





开放办公区的一隅还配有讨论区,此外也还预留出两间独立会议室与之互为补充。既有轻松氛围,也有私密场景,无论是用于非正式会谈,还是商务沟通,皆具灵活性与可选性。

操刀独立办公室时,设计师同样以简练的笔法描绘,开敞与自然是不变的主题,回归纯粹,唤起情感触点。



主理人办公室延续其由衷挚爱的现代简约风范,选材和用色皆和外部空间有着一定的关联。这里兼顾了办公、待客、小型讨论的多样化用途,此外还置入相应的配套支撑,强化舒适度与便利性。


暗黑基调打底,包容、低调且高级的质感油然而生。石材上凹凸打磨的痕迹,一定程度上弱化了方正的棱角,显得松弛与率性,也滋养出韵味与光泽,别有一番玩味。

南侧和西侧分设两个露台,让员工也能置身于户外自然之中,游目骋怀,与蓝天绿意相依偎,在工作与闲适的状态间无缝切换。

壹舍设计新办公室,立足开敞通透的架构,让室内与户外、建筑与景观紧密交融,又以简约的设计语言,饱含人文关怀的细节巧思,显得灵动又舒适。设计师方磊补充说:“此次乔迁,不仅仅是办公环境的改变,还意味着壹舍团队对新篇章的实践与期待,承载着更多的美好愿景与希冀。”

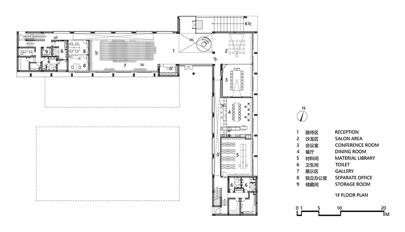
1F平面图

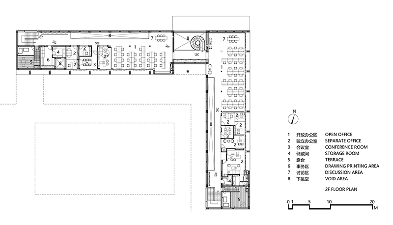
2F平面图
项目名称 | 壹舍设计新办公室
项目地点 | 上海
完工时间 | 2021年10月
设计公司 | ONE HOUSE DESIGN 壹舍设计
设计主创 | 方磊
参与设计 | 胥磊、刘沧田
视觉陈列 | 李文婷、孙雨辰、李美萱
项目摄影 | 朱海、张静