NEWS
看惯了城市的光怪陆离,看尽了席间的觥筹交错,看淡了世上的纷纷扰扰,便越发向往自然的亲近,简约的生活。大隐隐于市,业主于上海传统别墅富人区——长宁西郊板块的明苑别墅安家,并力邀颇为擅长现代风格的壹舍设计团队操刀演绎。强调因势表达与在地环境一脉相承的宜居生态且又不失尊享格调,是本次设计的题中之义,也是项目的着力思考点。

“我们试图让居者与环境对话,让建筑与景观融合,让室内外自然延伸,淡化各功能区界线,同时将空间的尺度感、材料的品质感与设计的艺术感合而为一,打造更简洁更现代更国际化的舒适居所。这背后集结了我们对美学的感知,对设计的思索,也融合了业主对家的期待,对生活的畅想。”设计师强调道。

设计师通过合理规划每一个功能布局,实现地上三层、地下一层的多维联动,以满足业主家庭成员的生活习惯和需求,开窗及建筑外观也因室内设计需求进行了相应调整。

一楼为家庭共享空间,入户后选材克制、用色纯粹,强化大宅的归家第一视觉与礼序。客厅以4米挑高营造卓阔旷达格局,三面落地窗充分纳入内外庭院的风光,配以金属纵向一体分割天花,整体气势得以延伸。

电视背景墙悬挂而立,隔而不断别具美感。客厅以“尺度”彰显大宅风范,更以此来衬托主人气度。而茶室、棋牌室与客厅相隔而设,两侧玻璃移门开阖之间呈现不同场景氛围。

以围合姿态构筑的内庭院,借助多面落地窗使其与玄关、餐厅和客厅串联交流。一方小天地,万千气韵聚。

餐厨区域中圆形餐桌与方正岛台、块面相对,既柔和棱角,又塑造张力。两侧设置可移动木格栅,影影绰绰间,增添一抹纤巧灵动的意境。


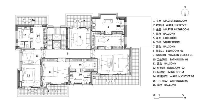
移步换景,直梯包裹电梯一路向上,到达二楼的私密起居空间。在喧嚣城市中,寻一方寸之地寄托本心,尤为重要。为此设计师为家庭成员配置了三个各具个性的卧室套间与一间书房。


主卧套间用穿透手法连接各区域,由安眠的米色调卧室向沉稳棕木色衣帽间深入,进而踏入极简白的卫浴间。卧室线条细节由立面至顶面延伸,窗景引入,起居生活与自然的联系更趋紧密,让净、简、素的基底更具活力与生机。


衣帽间封闭与开放柜体结合,在变化的韵律中营造精致、高贵的生活态势。

主卫以现代简约手法铺陈,以自然美景做点缀,通透而不失大气。



次卧套间内卧室一展干练利落的黑白灰色调,浓郁的现代气息充盈其中。

衣帽间、梳妆台在镜面与玻璃的相互映射下,虚实交融,无形中令空间扩容。

次卫内注入轻盈悬浮感,又可拥揽阳光,于美景中沐浴,好不惬意!

随光潜入室,午后的慵懒舒适与闲谈交心在另一次卧的起居室中显得如此和谐,两端衔接卧室与衣帽间,个体功能独立的同时增强了内部的延续性。


卧室选用单纯的灰调与温和的材质,散发安宁恬静的气息,忠于空间的本质功能。


衣帽间在递进节奏中又充满呼吸感,无处不彰显出业主的不凡品味。

卫浴内则框取户外葱郁绿意入画,激发盎然生趣。



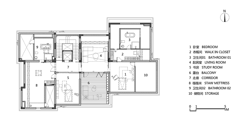
三楼设有书房、客厅、客卧、露台及榻榻米等区域,注重赋予其更多灵活可塑性,也为未来生活的后续需求留有发挥余地。露台与客厅开放互联,切面视觉让空间框架彰显趣味。斜顶开设天窗,以柔和方式留住适宜的照度,使书房更显宁静、祥和之气。



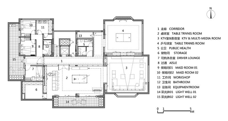
地下一层为休闲娱乐空间,品酒区、台球室、影音室、乒乓球室一应俱全,满足业主多元化的功能需求。台球室与品酒区一体而成,经由俊朗的材质强调线条垂直感以及映射延展性,塑造出丰富的立体构成。

KTV室、影音室宛如魔幻黑盒子,顶面延用映射且又对灯光、层次予以重构,立面则选用三种深浅有别、自由拼接的几何形壁布硬包,动感炫酷格调顿出。

公卫立面由大面积黑白马赛克铺呈,精巧细节中映衬着时尚基因与三维观感。

乒乓球室以白色为主基调,简洁明快的清爽气息扑面而来。健身器材上方的人造光顶精妙模拟自然光照,仿佛于自然中畅快淋漓挥洒汗水。
“总有一日,我要在一个充满阳光的早晨醒来,静静的听窗外如洗的鸟声,那是多么安适的一种苏醒。” 三毛的向往也是大多数人的心声。西郊明苑别墅正是以此为目标,从生活点滴着笔,舒畅至上,采用中性优雅的色调,尊重材料本身的质感,统筹室内与自然景观的平衡,打造诗意栖居之所!

1F平面图

2F平面图

3F平面图

B1平面图
项目名称 | 上海西郊明苑别墅
项目面积 | 1500 m2
完工时间 | 2019年5月
设计公司 | ONE HOUSE DESIGN 壹舍设计
设计主创 | 方磊、汪月梅
参与设计 | 陈诚
视觉陈列 | 李文婷、佟雨
摄影师 | 张静

壹舍设计创始人方磊

壹舍设计总监汪月梅