NEWS







南京明怡美憬阁精选酒店即落位于此。它隐于梧桐树与青砖红瓦之间,守望秦淮河的温柔水韵,亦亲近玄武湖的静谧湖光,壹舍设计以南京的山水意象与文化肌理为灵感,细腻地融入空间,讲述关于时间、生活与情感的故事。






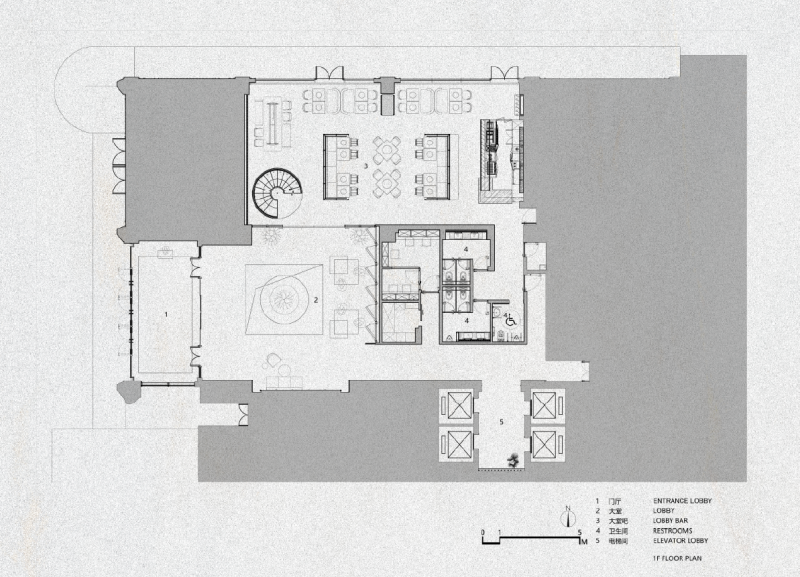
大堂空间以文人书房为主题,竹编构面与仿古砖瓦呈现低调而温润的文化气韵。顶部如纸屏般的柔光装置,光影间轻盈而有秩序。接待台背后则是隐约呈现山峦意象的光影浮雕,回应金陵城外连绵的山水轮廓。



材质与灯光细腻交织,竹的温润与砖的沉稳穿插流转,旅客初抵南京便与城市展开一场文化对话。






大堂吧以麻编岩板覆顶,延续大堂的文化脉络。深色木质、透光亚克力与金属元素交汇,传统非遗工艺与现代构成和谐共生。蜿蜒旋转楼梯背面,一幅由透光石纹亚克力组成的现代山水装置,在光影间展现水墨画般的氤氲山色,引人拾级而上。



通往电梯厅的亚克力墙面,将梧桐树影细腻映照地面,仿佛树影凝固瞬间。





二楼M Bistro餐厅延续大堂吧材质语言,整体气质更加从容静谧。接待台以深色石材稳重开篇,背景屏风古风枝叶舒展。墙面图案融合南京山形与传统织物,呈现城市脉络的秩序感。


餐厅采用黑色贝壳灰岩石材,如城市雨后青石巷道,默然释放出亲切与归属。





餐厅一隅旋转楼梯一侧设有静谧展陈空间,橙红色亚克力如霞光微澜,陈列茶器,唤起南京茶文化“轻捧清茶半日闲”的记忆。



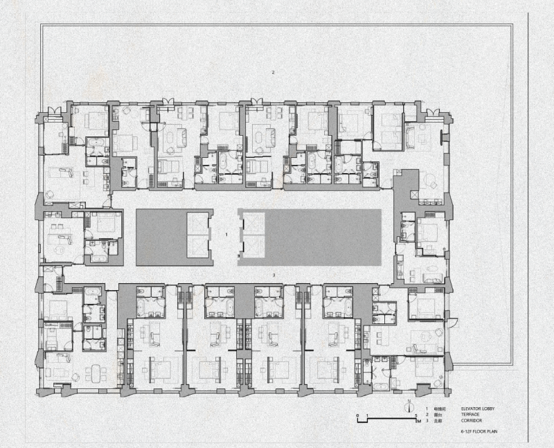
酒店五大类客房依旅居需求灵活布局,设计围绕生活的舒适尺度展开,淡化功能界限,自然承载居住日常。





面朝长江路梧桐树带的房型,大面积窗户引自然绿意入室。收纳柜嵌入定制壁布,以鸟瞰南京城抽象重构城市肌理与水系,讲述城市秩序与时间感。床背后的书桌顺应动线,适合阅读写作,营造旅途中的沉静时光。





电视柜背景与局部墙面均以竹编或刻有秦淮河岸建筑轮廓的洞石装饰,延续公共区文化语汇,为空间增添生活质感与温度。







所有客房均配备齐全厨房设施,从简炊到精致料理皆可满足。米白与浅木色调、贴合人体曲线的家具,融合洗烘与卫浴设施,提供安心自在的生活体验。




高层套房附独立露台,城市天际线在视野中徐徐展开,适合煮咖啡、品茶或聚餐,日常生活仪式感自然呈现。



与露台相连的Ming Bar,暖色灯光与木质台面相互映衬,适合独处或三五好友微醺相聚,都市灯火与生活瞬间彼此交融。




行政酒廊以克制柔和的设计语汇营造安静氛围。波纹石材吧台如水面涟漪静静泛起,蓝色定制地毯与木格栅围合空间,适合洽谈或安静独处。







地下一层健身房、瑜伽室与泳池,色调温润,设备齐全。泳池以玻璃与无边水面营造沉浸体验,洞石与木格栅彼此呼应,塑造轻盈有序的空间韵律。宴会厅则承袭大堂温润典雅的审美风格,温和灯光与竹编细腻呈现,为聚会或商务场景赋予从容底气。



南京明怡美憬阁精选酒店以细腻而沉静的设计语言编织着都市谧境。无论是大堂的文化气韵、餐厅与茶空间的悠闲自在,抑或客房空间内自在的日常与露台上惬意的仪式感,每一处皆体现着都市与生活之间的柔软平衡。壹舍设计以松弛而优雅的姿态,赋予旅居者“家外之家”的自在与温度,让人在城市的一隅安顿身心,细品南京温暖的人文生活。






项目名称丨南京明怡美憬阁精选酒店
设计内容丨室内设计
项目面积丨公区面积:2293㎡ / 客房面积:41.5㎡、58.9㎡、109.2㎡、160㎡、178㎡
设计时间丨2023.01-2024.12
开业时间丨2025.04
设计公司丨ONE HOUSE DESIGN 壹舍设计
设计主创丨方磊
参与设计丨蒙程鹏、胥磊、赵娇、李斌、陈汶霄
软装设计丨李文婷、李静、李美萱
材料丨木饰面、透光亚克力、竹麻编织、夹膜玻璃、柔性岩板、仿古红砖、木纹铝板、斧凿面石材
业主单位丨天安中国投资有限公司
项目摄影 | 张骑麟