NEWS
纵观近几年的地产营销现状,功能单一的传统销售中心正逐渐失去竞争力。以客户体验为主的“去销售化”模式,让客户直面内核需求以及未来生活方式,俨然成为了新的趋势与共识。本次由壹舍设计受邀担纲室内及软装设计的苏州中南紫云集售楼处,正是在这样的思考中酝酿而成的。

“新兴时代语境下,售楼处在保留传统必要的功能分区之余,理应能承载起更多的活动。我们设计之初便将‘亲子活动、人文关怀’主题注入,透过纯粹的材质、灵动的陈设、多元的布局,创造一个充满自然与幸福的的场所,借助缤纷的图景开启未来家园的美好想象。”设计师方磊说道。


设计师因势挖掘建筑特点,将树屋安置为核心所在,融合“圆”的概念向外扩散,以充满雕塑感以及流动性的手法,来构造动线丰富的序列组合。在层层相迭的围合形态中,各功能分区都可与树屋交流对话,同时将亲子陪伴巧妙融入,赋予空间丰富层次与生机活力。


设计师以一贯的克制平衡之道贯穿整体设计。踏入室内,只见质朴的原木、水磨石映入眼帘,温润柔和,轻松的基调油然而生。
树屋顶面木格栅呈放射状向四周铺陈,地面、立面均借由木质与之遥相呼应。阳光透过顶端采光井洒入,内外共生,经由透明亚克力散射,配合多维的灯带作用,构筑极具韵律之感、且又伴有变化的光影效果。


此外通过下沉式设置,高低错落让这一隅更具玩味。绿色象征着生命力,也隐喻着成长意义。置身树下,可探寻和享受自然界的清新舒适,生趣盎然。于某种层面而言,这也是苏州现代生活与园林情节的一场跨时空演绎。


弧面的水吧台衔接着树屋和洽谈区,悬浮、穿插、块面手法的综合运用,塑造简练风貌之余,又有跳脱之姿。这里也为亲子间的烘焙、手作提供了舞台,在身体力行中凝聚起幸福感和创造力!


洽谈区内材质、造型、色泽在平衡的搭配中烘托出开放随性的气氛,柔软舒适的沙发可组合变幻出不同的体态,和谐与亲密则是始终不变的内涵。这背后折射出设计师对沟通场景的尺度把控,也兼顾了洽谈时儿童可在一旁玩乐活动的贴心思索。

沙盘区再一次延续“圆”状,吊灯萦绕而上,在环环递进中勾勒出云形,进一步充盈自然气息,也映衬出弧线的立体感与力量感。



大面积的弧面书架与也与树屋、水吧构成层层包裹,且书架背板沿用木格栅,层板内部暗藏灯带,纵横之间饱含秩序与细节特色。不同主题的书籍分门别类陈列于书架之上,无论成人亦或孩童,总能挑选到自己的心中所爱。


错落台阶自由而上,韵律节奏、包裹层次愈发凸显,再一次强化整体呼应。在此席地而坐,安享亲子阅读的美好时光,彼此一起学习一起成长。阶梯书吧背后设有LED大屏,可满足影音教育、多媒体展览等需求,有效拓展其使用功效与价值。


设计师对于选材极为克制,卫生间仍采用水磨石呈现简洁基底,与其他元素结合也相映成趣,在质感上显得朴实且干练。


卫生间上方开辟夹层设置儿童天地,作为上下空间的连接纽带,格栅、楼梯、滑梯仍旧贯彻弧面姿态。滑梯下面是欢乐的海洋世界,夹层楼上则是浩瀚的宇宙天际,在寓教于乐中激发孩童的好奇心与冒险精神。

夹层内追求沉浸感的营造,墙面设置大小各异、高低起伏的球体形态,加上顶端不锈钢冲孔板的映射,引导孩童在虚实交织中去探索神奇的星球与未来。

苏州中南紫云集售楼处超脱传统售楼处框架的局限,从亲子关系着笔,将客户对生活的畅想、感受充分纳入考量,打造全新的互动式体验馆。灌注其中的温暖、陪伴、关爱与未来,在日后必将回馈生活、反哺给日常,谱写宜居的故事!



△效果图

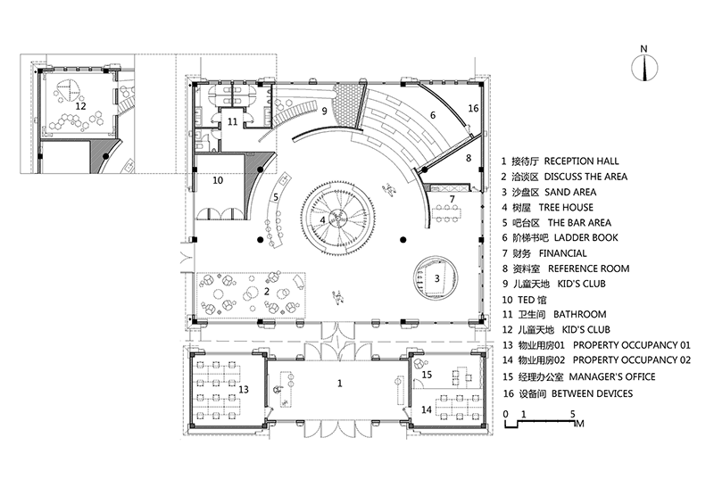
△平面图
项目名称 | 中南紫云集售楼处
项目地点 | 江苏省 苏州市
开发商 | 中南置地·苏南区域公司
项目面积 | 680 m2
完工时间 | 2019年5月
设计公司 | ONE HOUSE DESIGN 壹舍设计
设计主创 | 方磊
参与设计 | 汪月梅、蒙程鹏、陈诚
视觉陈列 | 李文婷、刘艳、李蕾蕾
甲方管理团队 | 秦刚、张亮、邵剑
摄影师 | 张静