NEWS
每个左右时代的塔尖人物,总是对高雅品味有着自身的追求。而这些人睿智、坚韧的精英性格,恰能符合高端豪宅独具审美的居住体验。花样年花漾锦江坐落于成都城南CBD腹地,作为一处绝无仅有的存在,尽得繁华与自然。诚邀壹舍设计携手合作,旨在探讨都市与人居的关系,缔造前瞻的理想生活范本。

“视野决定格局,细节决定品质。在坐拥建筑高层优势之余,最大化挖掘将功能、美感与氛围统筹于一体的切入点。”壹舍设计团队如此概述道,“设计核心是以现代简约手法铺陈发散,寻求时尚风格与舒适享受之间的平衡,同时又确保其具备灵活可塑性,能为生活带来惊喜。”
VIP接待中心



遵循设计团队一贯的克制平衡之道,VIP接待中心以最通透、最纯粹、最细腻的视觉呈现,完成空间的情绪表达:无拘与率性、干练且利落。



以充沛的采光与绝佳的视野为契机,VIP接待中心注重凸显空间的虚实与流动性。采用白色基调打底,各功能布局在无形分隔中赫然呈现,且极具体块感。色泽交替与造型转换,充分调动视觉张力。



材质协调与饰品陈列,简约蕴含于设计表象。目光所及,纤细的线条铺陈于立面、顶面,勾勒出工巧的纹理细部,而内嵌考究灯槽更令质感得以极致提升。
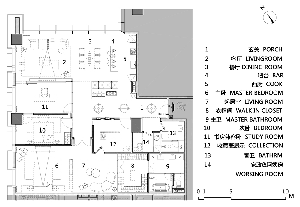
▼平面图

H户型:雪花白玉套房

H户型采用极简白为基调,以极致的美学呈现,在理性与时髦兼具的风格下,跳脱出艺术般的大胆前卫,灵动又不乏舒适。


进入玄关,深色木饰面与浅色夹丝玻璃的冷暖对撞带来反差视觉体验。轻盈的材质特性让室内阳光洒入,温暖流淌。L形过道作为核心动线,在自成体块的格局中挖掘各空间内在潜力,打开生活的无限可能。



开放式客餐厅大面积采用大理石与玻璃、金属相搭,两侧全尺度落地窗引入天然光感,简单纯粹之余,又塑造开阔画面。


“以穿透性手法运用、转换,黑白材料的跳脱碰撞,实现了西厨与餐厅、中厨的相承相依,在清净中探索空间的界限,耐人寻味。”设计师解释到。


次卧背景墙上六边形金属网交织出魅惑叠影,极具视觉延伸性,堪称无法忽视的亮眼细节。

客卫延用灰色纹路大理石,通过严谨的比例拿捏,满足多样的功能性需求。整体既干净简洁,又涤荡着朦胧美。


在阳光明媚处构筑书房,一门之隔与主卧相串联,强化空间体验。




主卧在素雅的背景中,与胡桃木相遇,散发出雅致气息,灰、木两色巧妙配比,让人安享恬静睡眠。立面顺延到顶面的线条造型,呈现不同韵律的分割。雾化玻璃的运用,增强套间内流动性。


主卫使用深色马赛克铺呈,白色水晶零星点缀,营造出完美的纵深感,细节处透露个性与时尚基因。搭配悬浮式镜面、台盆以及置物架,整体效果非常简洁优雅。

开敞式L形衣帽间,衔接着主卧与卫浴空间,贯通有序,又展示独特的情调。金属架支撑层板极具结构美感,而灯光的烘托更是强化了场景氛围。
▼效果图


▼平面图

G户型:绅士迷棕套房

G户型以简约内敛的语言,调和高级灰与温润棕,透过开放式设计探讨共享与私密的关系,并使其相互作用,创造出一个别具格调的绅士空间。




借助大理石、木材、皮质以及金属古铜构建界面关系,既有过渡延展,又有细节层次,衬托出丰富多元的空间情感。客厅现代沙发配合禅意枯枝,刚柔并济,两侧墙边均暗藏玻璃移门,由此可进入主卧以及书房。


餐厅运用错落有致的吊灯,黑白灰元素非规则堆积的画作,软化空间方正感,勾勒出视觉宣泄点。


以客餐厅为中心,中轴动线串联各功能区域,主次关系配合得当。顶面胡桃木格栅与大理石的衔接收边、以及墙面金属勾缝,则印证对设计细节的出色把控。



书房位于电视背景墙后,选用开放式书架,用金属元素呼应整体力量感。落地窗引入光源,基于夹丝玻璃若隐若现的特质,让书房与外部空间关系上既模糊又交织。



客卧采用静谧优雅的高级灰,大胆地将图纹浓郁的壁布、跳跃的绿色与橘色融入其中,展现年轻风采。




次卧套间延续灰色基调,在简洁舒适中营造出安静惬意的环境。其衣帽间与卫浴空间,明快洗练的风格在外,功能性实用性兼顾在内。


主卧拥有充裕的采光,格栅窗帘与胡桃木元素纵横间强化虚实韵律。垂落的吊灯,淡然的床品、几何形块的画作,氤氲出融合意境。背景墙以不落地式设计,并引入建筑中套口处理,与后方观景阳台展现有趣的空间区隔。

设计中充分利用采光面,巧妙规避原始结构立柱的限制,主卧以及书房两处观景阳台的成功打造正源于此。“对建筑结构的解析与重塑颇为重要,不单是提升空间利用率,更关键还能活化空间、让其更加缤纷多彩。”设计师说。


步入式衣帽间与主卧以回形动线相连,增强了空间的流动性。肌理显著,硬朗之余,木质让空间变得温和。此外又与次卧套间的衣帽间在两端遥相呼应。


主卫将块面处理手法贯穿其中,定制几何图案马赛克与金属材质交替混合,灯光暗藏于镜面四周及顶端,实现设计与功能的统一。
▼效果图


▼平面图

N户型:幻影灰套房

N户型入户第一视觉,便以绿色相迎。充分利用玄关,以穿插手法设置多重收纳系统,简约与功能并存。开放式动线映射出纷呈的轮廓,引导着进一步的探寻。




厨房、客餐厅完全自由连接,环绕型动线确保各功能区之间的顺畅流转,全景落地玻璃窗吸纳光线让其成为设计元素的一份子。四季与空间交舞,变化出表情多样的生活剧场,即便身处都会,依然可感受自然生命力。



设计师提取烤漆材质的黑白色反差,从材料、细部和营造方式上窥见轻巧风范。



书房与客厅共倚一墙,辅以灰色玻璃又让空间有互动。在这方正的一席之地,流露着大道至简的返璞真谛。


次卧将灰色调在空间中发挥到极致,立面上简洁线条呈序列对望,完成静谧、平和的情绪表达。

客卫半嵌式台盆搭载内凹式收纳,外加高级灰的渲染,绿植的点缀,有效增添空间立体感与对比性。



主卧套房内设起居室、衣帽间及主卫,各功能空间呈开放递进式布局。室内浅咖色皮革、纹理感强烈的壁布与黑色镜面碰撞,都市格调感油然而生。



“通过模糊空间界线来制造一个流畅娴静的休息空间,引人沉浸在闲情余绪之中。”设计师说道。

两个用途各异的衣帽间、陈设室分工明显,在彰显品味的同时也直抵美的内核。衣帽间用金属、高级灰烤漆与皮革碰撞,层板之间以灯光渲染,传达出精妙气韵和雅致经典。

陈设室作为功能补充,置于主卧套间与玄关之间,整墙镜面放大空间。审美简洁精准,线条低调洗练。


主卫鱼骨拼的手法令其更具趣味,镜面与黑色BOX柜体以及台盆形成交互,在实用中彰显方圆有度的设计美学。
▼效果图


▼平面图

大堂及公区

花漾锦江C栋入口是整场的气韵起点,穿插手法打造入户门,结合一侧挑檐与绿植造景区,把这里特有的自然休闲精湛演绎。进入门厅,玻璃幕墙两侧水景设置,形成了室内外空间的对话。依建筑层高优势坠下的灯饰,成为大堂视觉焦点。光影效果配合凹凸线条的层次变化,散射晶莹剔透。



电梯间延续建筑飞翘而出的檐口形式,以大小不一的分割打造序列感,产生内外部顺畅过渡以及心理情感上的呼应。


抵达39楼,电梯间同样极具视觉延伸性,同时又饱含节奏与仪式感。过道借助不同材质的妥贴联合,凝聚出安静沉稳的力量。循此深入,VIP接待中心以、G户型样板间正分布于此。
▼效果图

▼平面图

纵观由壹舍操刀的花漾锦江各空间,完美掌握了建筑的特性,以其独特的巧思和灵活的设计,将人对自由的向往以及城市的梦想融合在一起。设计师补充道:“花漾锦江以突破陈规的天性追求不凡,在设计中我们也保持对现代生活风尚的敏锐触角,藉此为都市精英带来全新升级的格调生活。”
项目信息
项目名称 | 花样年集团花漾锦江
项目地点 | 四川省 成都市
设计范围 | VIP接待中心, H、G、N户型样板间,大堂及公区
项目面积 | VIP接待中心 85㎡、H户型 173㎡、G户型 186㎡、N户型 202㎡
完工时间 | 2018年7月
设计公司 | One House Design壹舍设计
创始人 | 方磊
设计主创 | 汪月梅
软装设计 | VIP接待中心、G户型 One House Design壹舍设计
参与设计 | 蒙程鹏、胥磊
视觉陈列 | 李文婷、关佳林
主要材料 | 卡拉拉白大理石、国际灰大理石、卡斯特灰大理石、石材马赛克、不锈钢、胡桃木、烤漆板、皮革、壁布
摄影师 | 张骑麟