NEWS

外观于物,内感于心,居所总是在由表及里的渗透中,关照情感,滋养日常。天安别墅样板间坐落于常州西太湖之畔,由方磊领衔壹舍团队担纲设计,依托原有地域、水系等特性,以感知思维切入,融合酒店式的卓越体验,不断探索自然语境下的至臻之居,旨为当代塔尖精英探寻一种全新的宜居范本,让生活与精神全然丰盈。

“天赋谧境,是自然的馈赠;湖光作序,碧水为脉,深研理想人居。我们从项目在地性思考,不囿于某种边界,根植于生活点滴,用现代设计语汇糅合酒店格调之美,从容进退间,品味人文积淀的府邸韵味,于情境调度中激发无限的想象。”方磊如是概述。
01
开篇 & 造境



以写意笔触营造归家的极致仪式感,虚实相生的造景手法,光影流动、意境悠然。金属格栅作底,吊灯叠映其上,光源映射强化细节,随即楼梯转角一隅也隐约而现,目之所及材质碰撞、造型辉映,一切浑然交融、尽显和谐。

循步向前,基于原始建筑的地势落差,梳理出体块关系,并使之层叠与衔接,在起伏变化中,穿梭递进。诚然这也是因地制宜的设计演绎。



客餐厅于横轴上联动而设,熟悉的金属格栅对称散布于四角,开阔大气的东方格调不彰自显。背景墙石材对拼奠定客厅沉稳俊朗的主基调,软装陈设将大气雅致与质感表现相平衡,以期互补共生。烛火摇曳,美好愉悦氛围也随之渲染。




作为横纵交互的中心点,餐厅更关乎彼此的响应与关联。借由千丝万缕的紧密包裹与光芒散射,水晶通体管宛若立体艺术装置,熠熠生辉,自成一景。设计师以清晰的脉络串联起点、线、面、体,高低交错、张弛有度,为用餐增添一抹空灵优雅之韵。



汲取设计元素的延续,强化整体感受。拼叠有序、内凹成势、弧度起伏之貌同样出现在吧台,底座则运用金属构件又可削弱体量厚重感,对立与融合的张力亦潜藏于细部之中。


以融洽的存在,表达静谧自由的本色。将木盒子浑然嵌入,中厨于内、西厨于外,这包含着对每一寸空间的周全应用,也是对功能需求的完善与补充。
02
演绎 & 升华




参照酒店式起居场景,于二楼构造枢纽之地,套间居室环绕。提取颇具东方意象的屏风形态,对沙发呈包裹姿态,并以此开启围合布局。内敛规整的低调秩序亦进一步描摹酒店气韵,透过阵列式陈设、高饱和色点缀,强化典雅之境。在深浅对比、错落有致中,仪式感与随性气息兼具。



酒店式居住感受,切实落笔在体验层面,主卧套间可谓对此深度践行。主背景显著的线条韵律、内凹的弧度极具包容抚慰之感,清晰可见其与一楼一脉相承之意。非对称的床头柜设计,也蕴含着对上下体量、前后交互的思考。搭配两侧留白,提升感官的从容呼吸。

主卫顶部设有天窗,借助光线变化塑造着微妙动态,并让这一隅实现室内外的交融与对话。此外,镜面的尺度、位置、造型,乃至圆弧的边角处理,无一不凝聚着设计师对功能与美学的融汇捕捉。

利落的块面,直观勾勒出长辈房套间简洁清秀的风貌。素雅的底色、亲和的材质,温润又不失层次。入门处柜体外侧设置镂空式格架,有效减少逼仄感,强化其舒缓之气。于外则坐拥双露台,让两个方向各不同的景致温情陪伴四季的更替,尽释闲情雅韵。

格栅以一气呵成的过渡关联,加强卧室与卫浴空间的连贯性,立体而生动。

晚辈房套间以色调为触点氤氲开静谧安适气息,又引入纹路、肌理的细腻呼应,传递出克制的高级。悬浮柜体辅以内嵌格架,并配与灯光烘托,丰富场景层级。

导入建筑美学,让不同体块及材质的咬合穿插,格局分明又有形体之变,释放简练质感。


多元功能的整合,并不等同于叠加合并,背后承载着对需求做更深层的探讨与分析。弹性的疆域,具有包容未来的特性,诠释复合场域的平衡奥义,内核中必然不能缺少对整体设计的延续与响应。

细节总潜藏在方寸间,客卫利用体块、纹理、光影强化个性,创造通透轻盈之感,亦兼顾本质的使用需求。
03
沉浸 & 共融

抵达地下一层,玻璃砖配合灯光的上下烘托,显得愈发通透与醒目。遵循中国古典的步入方式,并体察视觉落点,渐渐揭开序幕,引导向前探索。

休闲区从兴趣爱好、娱乐社交的触点出发,依托建筑结构延展并利用采光井,将光照引入,打破沉闷。在软装陈设上,也充分考量其与空间轮廓的适配以及构成关系,在形、色、质上全方位统筹,精心呵护每一细腻点滴中的惬意享受。

常州天安别墅样板间,敏锐关照居者内心感受,将国际视野、酒店风情、人文气息注入这一湖岸府邸,外部视觉的流露与内在情感的映射,相得益彰。在逐步的引导与浸润下,触发品质和精神深层共鸣,共筑奢享之居。






效果图▲

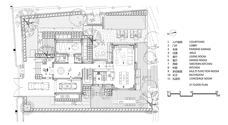
1F 平面图▲

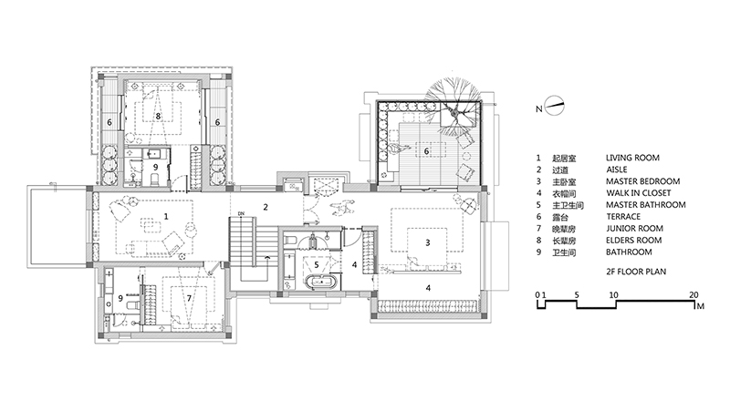
2F 平面图▲

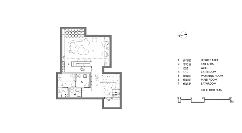
B1F 平面图▲
项目名称 | 常州天安别墅样板间
设计面积 | 480㎡
完工时间 | 2022年10月
设计公司 | ONE HOUSE DESIGN 壹舍设计
设计主创 | 方磊
参与设计 | 蒙程鹏、柴润之、胥磊、刘思宇、李斌、陈汶霄
视觉陈列 | 李文婷、孙雨辰、王伊荣、李静
项目摄影 | 张静