NEWS
风起南海,潮涌珠江。珠海作为粤港澳大湾区的重要门户枢纽,迎来了飞速发展。位踞唐家湾香山文化发源地,背倚凤凰山麓,拥揽情侣路绵长海岸线的仁恒滨海半岛,以“山、海、城”之大境,傲立珠海高端豪宅桥头堡。其近期揭幕的上叠样板间由方磊领衔的壹舍团队操刀室内硬装设计,以匠心精品、愉悦感知,力图引领大湾区人居新高度。

“随着时代发展,居住模式也迭代更新。基于项目的滨海位置和风情特色,我们聚焦城市精英阶层,以前瞻性思考、自由笔触贯穿始终,辅以国际化视野和当地人文情节,构建多元场景并充分调动感官情绪,以期带来超凡的生活体验与内在品味。”设计师方磊强调道。
01 自由气度 注入生活仪式感

起笔于全方位的开放互联,追寻各分区的彼此渗透。客厅5.88米挑高营造恢弘气势,也增进了上下层的流通对话。


虚实相生、跳色装点,心揽万物,意归无尽。从客厅踏入瞰景阳台,即可感受海风拂面,又能远眺山野丛林,目之所及,心之所感,皆为美好。

开敞之余,亦注重朦胧美与功用性结合。在挑空区立面置入木格栅,既保留了通透,也氤氲开隐约之感,还给予安全层面的呵护。这不止关乎实用与视觉,也流露出人性化的照拂。



利用空间框架多体量的层叠与隐退关系,增添气场,材质于此顺畅交织过渡,因势赋形。在阔绰的尺度里,既强调聚而不散,又不乏合中有分,凸显了设计师谋篇布局的统筹功力。


同一材料以其细微的碰撞便能有着别具一格的表现。木作与石材虽为常规组合,通过巧妙的节奏,不同的肌理质感,以及恰当的细节点缀,演绎出大道至简的纯粹格调。



得益于对透视效果的精准把控,以视觉仪式感为切入口,铺展开欢聚一堂的用餐画卷。践行秩序和克制平衡之道,并随着渐进式的交互与深入,环顾四周总能邂逅多彩景致。



运用解构技法、体块穿插,吧台和楼梯踏步自成一体。灵动交错的姿态,衍生出更丰富的置物功能,也让此处轻盈悬浮,步履生风。


木盒子概念基于原始建筑形态包裹而出,叠级错位向上,既有效打破呆板,也是造景思维的进一步实践。平台之上,以留白不设限的理念,匹配未来更多可能性。


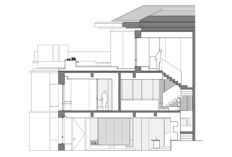
地上层剖面图
02 静谧栖息 安放无拘的灵魂

临海而居的静谧诗意充盈着主卧套间。卧室以高端酒店的居住体验为参照,大片落地玻璃实现延展,增强了睡眠区与主卫、乃至窗外的联动表达,也弥漫开柔和浪漫的气息。

选取优雅皮质编织成线条,勾勒动态起伏之韵,在多层次的光影映射下,注入度假般的随性自在。

留一寸私密休憩处,女孩房从愉悦自我的视角出发,覆以珍珠鱼皮,精致十足又个性吸睛。并经由一块竖向玻璃与卫浴室营造虚实之境,无形中激发呼吸感与情趣性。

简约温润的氛围,淡雅素净的色泽,让次卧删繁就简,回归内在本质,以现代美学引领品质风尚。
03 休闲场域 承载多元娱乐性

闲适岁月,心向往之。在顶层绝佳位置安放多功能室,木质元素从地面延展到墙面、顶部,温润的底色,奠定充裕的灵活度。玻璃移门与户外露台相连,模糊了界限,日后更多社交故事也将在此上演。


生活之美并非只展形于外,更在于内在涵养与周全体察。地下层以多元的休闲娱乐场景,赋予更高层次的精神满足。或品酒畅谈、或欣赏影音,诠释精彩纷呈的欢愉人生。

作为保障空间完整性的重要一环,选材的形、色、质,以及处理手法皆进行了延续。地下室同样为活络的挑空式格局,配合采光井更好纳入光线。仿若整片石材下挂的背景墙串联地下两层,楼梯对其呈半围合状,简练且充满张力。

在设计中不断探索和审视居者与周围事物、景色的关联,于是拆除一面墙体,让大片落地玻璃将庭院景观引入,挥杆之际,都市品格与自然情致浑然合一。

地下层内庭院自成一方静谧天地,素雅干练的用材与水景园林交相辉映,涤荡开无尽的人文雅趣。在艺术的构造下,建筑本身与周围环境和谐交融,恍如遁回桃花源,忘却世间尘与烦。互动联通中,可谓室内户外,各有风韵。


地下层剖面图
浩瀚无垠的大海包容着人们对于理想生活的无限想象,珠海仁恒滨海半岛上叠样板间接轨国际视角,广纳海滨风情,触发情感与场域的连接,以内外空间的融合相映,尽情抒写山海叠墅的雅致精萃。

1F平面图

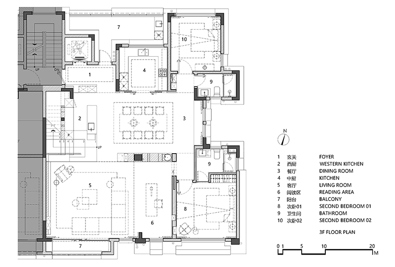
3F平面图

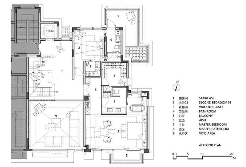
4F平面图

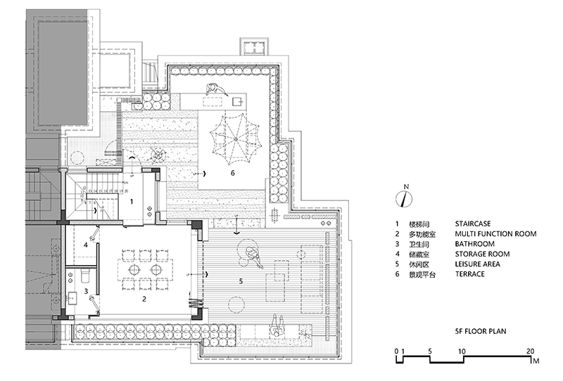
5F平面图

B1F平面图

B2F平面图
项目名称 | 仁恒滨海半岛上叠样板间
项目地点 | 广东 珠海
设计面积 | 555㎡
完工时间 | 2022年1月
室内硬装 | ONE HOUSE DESIGN 壹舍设计
设计主创 | 方磊
参与设计 | 李煌、赵冰洁、樊钱中、黄翠勤、陈汶霄、康正卿
项目摄影 | 张静