NEWS
天地赋画境,江南灵秀地。龙信中天·御澜珑溪伴随城市崛起韵律,落子宜兴丁蜀中芯腹地,贵隐青龙山下,大器天成。壹舍团队受邀操刀设计其下叠样板间,以城芯意蕴为墨,立足国际化视野,在自然光影中渲染诗意,在多彩生活中释放热情,引领质感人居。

“精尚于色,简于形;细节入笔,求于内。设计起于空间链接于人,将色彩、肌理、体块形成碰撞与互补贯穿其中,以形传神,恬静意境与都市格调融归于此,每一隅都赋予居者丰盈共情。”设计师方磊阐述道。
01
序幕:自在 平衡


惬意的舒适感,无须过多雕琢,大道至简的笔触通透旷达。以挑空的结构、流畅的分区、适宜的体块奠定室内框架。逐光溯影,家居与灯饰以貌与质的共舞催生流动,用细微之处的跳跃点缀,在和谐的色调中构筑对比之感,成就一种更立体的姿态。



远观利落清朗,近处亦细致耐人寻味。背景墙以适宜的尺度自成一景,从感官形态出发,艺术审美同样蕴藏其中。目光所及之处,加之不同维度之间的色彩叠加,环环相扣,于格局鲜明之中构筑半分理性半分诗意。




布局共生,经纬分明,一面烟火一面生活。一体开放式的场景,增添了家人间的互动交流。餐厨空间大量留白,以期启发每一个味觉与细节,乐享用餐时光。


金属、皮革、木饰,精准落笔,线条与块面互为映衬,彼此联通。在此设立阅读区,浮光掠影,舒缓心中浮躁。慢品,慢读,回归真实自我。
02
奏鸣:克制 栖息


于外丰盈,向内克制,主卧套间回归居住本身,材质运用虽说有异,但在色度上却又始终保持着一致,且充盈着契合的肌理细部,最终令自然情愫流淌其中,尽显素雅温润之感。


光影随着木格栅一同律动,相互渗透,虚实结合,于精奢的质感之中也创造出独特的疆域。



以童趣视角作为情感链接,儿童房巧用马卡龙色系,细腻的粉、生机的绿、以及柔和的蓝,配合灵动的造型,以此进一步引导多元感知。

次卧以渐进式的笔触展开,床头背景墙以体块的划分与拼接勾勒着起伏之韵,陈设布置则显得轻松随性,在多元材质的交错层叠中诠释新的平衡美学。
03
变奏:归隐 集趣



在挑高达4.9米、拥有开阔空间廓形的地下室,依托建筑结构来延展设计语言,以大方且实用作为出发点,汇聚会客、社交、娱乐、品酒、阅读场景,满足现代都市人的多维需求,迸发着无限的活力。




洗练的线条、考究的比例、井然的秩序、浑然的交融,在兼收并蓄的面貌中娓娓道来构成关系、延展之状、以及流动美感,诚然不俗的品味亦渗透在细枝末节处。

于夹层打造一方休闲天地,滋养日常情愫。对外是上下楼层间的视角转换,向内则是对自我的细腻探索。设计上也同样追求形态的外显与融合,无拘无束,相映成趣。

境由心生,物随心转。宜兴龙信中天·御澜珑溪下叠样板间,源于对生活的细致考量,注入自由开放的基因,将自然、时尚与绚丽刻入肌底,以此唤醒潜在的感受和情绪,缔造出理想主义的人居之地。

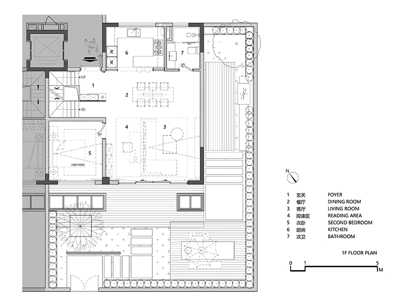
1F 平面图▲

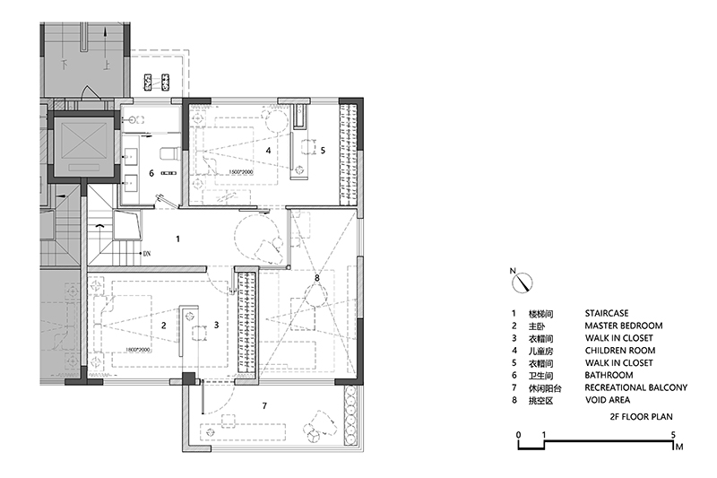
2F 平面图▲

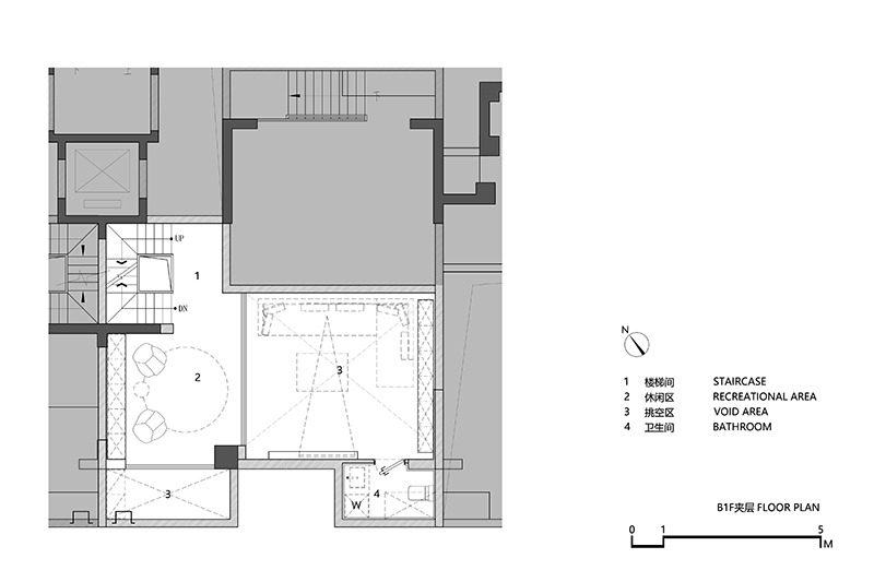
B1F夹层 平面图▲

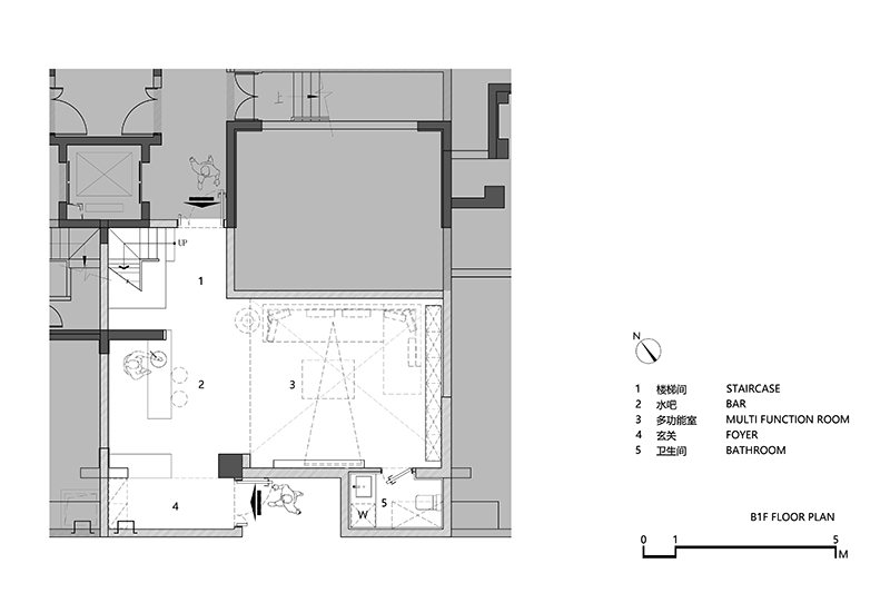
B1F 平面图▲
项目名称 | 龙信中天·御澜珑溪下叠样板间
项目地点 | 江苏 宜兴
完工时间 | 2022年9月
设计公司 | ONE HOUSE DESIGN 壹舍设计
设计主创 | 方磊
参与设计 | 李煌、樊钱中、刘沧田、康正卿
视觉陈列 | 李文婷、孙雨辰、李静
项目摄影 | 三像摄